Lumière Midtown The Global City sở hữu vị trí lõi trung tâm tại đại đô thị biểu tượng, ngay mặt tiền đường Liên Phường, Phường An Phú, Quận 2. Dự án Lumière Midtown mang đến không gian sống tinh anh với thiết kế New York hiện đại. Lộc Phát Hưng cập nhật tháng 04/2026 giá bán 170 triệu/m²cùng chính sách chiết khấu lên đến 15%. Hiện tại công ty đang có giỏ hàng độc quyền hơn 200 căn tầng đẹp, view trực diện kênh đào, làm việc trực tiếp với Masterise Group.

Hotline Mua Bán + Cho Thuê + Ký Gửi Lumière Midtown Quận 2: 0937.098.890
Tổng Quan Dự Án Lumière Midtown Quận 2
Lumière Midtown The Global City là viên ngọc quý tiếp theo trong bộ sưu tập Lumière Series của Masterise Homes. Sau sự thành công vang dội của Lumière Riverside, dự án này đánh dấu sự trở lại của biểu tượng sống tinh anh tại tâm điểm phồn hoa mới của TP. Thủ Đức. Với quy mô 808 căn hộ hạng sang, chung cư Lumière Midtown không chỉ là nơi an cư mà còn là một tác phẩm nghệ thuật kiến trúc phản chiếu bầu trời.
| Hạng mục chi tiết | Thông số cụ thể phân khu Lumière Midtown (CT7) |
|---|---|
| I. Quy mô & Vị trí chiến lược | |
| Tên phân khu | Lumière Midtown (Phân khu cao tầng CT7) |
| Địa chỉ chính xác | Mặt tiền đại lộ Liên Phường, đại đô thị The Global City, Phường An Phú, TP. Thủ Đức (Quận 2 cũ). |
| Số lượng tòa tháp | 02 tòa tháp: Tower A và Tower B. |
| Tổng số căn hộ | Chỉ 808 căn (Dòng sản phẩm giới hạn dành cho cộng đồng tinh anh). |
| Mật độ xây dựng | Khoảng 28% (Ưu tiên không gian cho hệ sinh thái Biophilic và mặt nước). |
| II. Thông số cấu trúc & Xây dựng | |
| Chiều cao công trình | 23 tầng căn hộ + 04 tầng khối đế + 02 tầng hầm. |
| Thông số hầm & đỗ xe | 02 tầng hầm thông minh, trang bị hệ thống quản lý hiện đại và trạm sạc xe điện. |
| Độ cao trần điển hình | Căn hộ thường: 3.4m | Penthouse: 4.5m | Penthouse Duplex (thông tầng): 9m. |
| Tiêu chuẩn kính mặt ngoài | Kính Low-E khổ lớn (Full kịch trần), 2 lớp chân không cách nhiệt, chống tia UV 99%. |
| III. Cơ cấu loại hình sản phẩm (GSA) | |
| Căn hộ 1 Phòng ngủ | 47.4 m² – 48.4 m² (Thiết kế thông minh cho người độc thân thành đạt). |
| Căn hộ 2 Phòng ngủ | 65.5 m² – 80.8 m² (Phù hợp gia đình trẻ, chiếm tỷ trọng lớn trong giỏ hàng). |
| Căn hộ 3 Phòng ngủ | 89.7 m² – 129.8 m² (Vị trí căn góc, tầm nhìn Panorama 270 độ). |
| Căn hộ 4 Phòng ngủ | 109.4 m² – 151.6 m² (Số lượng hữu hạn, đẳng cấp sống thượng lưu). |
| Siêu phẩm hạng sang | Duplex (146.7 – 250 m²) | Penthouse (161 – 225.4 m²) | Penthouse Duplex (238.9 – 325.7 m²). |
| IV. Hệ sinh thái tiện ích & Vận hành | |
| Phân bổ tiện ích | – Tầng 1: Premium Lounge, Business Center, Studio sáng tạo nội dung. – Tầng 3A: Phòng Gym & Yoga view vô cực, Thư viện, Khu vui chơi trẻ em Kid’s Club. – Tầng 5: Hồ bơi vô cực 27m, Jacuzzi, Sky Garden, Khu BBQ ngoài trời. |
| Quản lý & Vận hành | Masterise Property Management (Tiêu chuẩn khách sạn 5 sao). |
| Tiện ích Downtown | Một chạm tới Mall 123.000m2, Nhạc nước lớn nhất ĐNÁ, City Park, Công viên Hyde Park 4.5ha. |
| V. Đối tác phát triển & Pháp lý | |
| Thiết kế kiến trúc | Foster + Partners (Anh Quốc) – Tác giả Trụ sở Apple Park. |
| Thiết kế cảnh quan | WATG (Hoa Kỳ). |
| Pháp lý & Sở hữu | Sổ hồng lâu dài cho người Việt Nam. Đã hoàn thiện hạ tầng, đủ điều kiện ký HĐMB. |
Ghi chú từ Sàn Giao Dịch Lộc Phát Hưng:
Lumière Midtown nằm đối diện khu thương mại sầm uất Soho, hưởng lợi trực tiếp từ lượng khách tham quan khổng lồ mỗi ngày. Hiện tại, chúng tôi đang nắm giữ giỏ hàng độc quyền các căn Duplex và Penthouse có vị trí đắc địa nhất tòa Tower B.
Hotline Mua Bán + Cho Thuê + Ký Gửi Lumière Midtown Quận 2: 0937.098.890
Phân Tích Vị Trí Kim Cương Của Lumière Midtown The Global City
Địa chỉ tọa lạc và siêu kết nối hạ tầng
Lumière Midtown The Global City sở hữu vị trí độc tôn ngay mặt tiền đường Liên Phường – trục đường huyết mạch xuyên tâm đại đô thị. Từ đây, cư dân chỉ mất 1 phút để đến trung tâm thương mại 123.000m², 2 phút đến khu mua sắm sầm uất nhà phố Soho và chưa đầy 5 phút để kết nối vào cao tốc Long Thành – Dầu Giây. Sàn Lộc Phát Hưng đánh giá đây là vị trí “vàng” đảm bảo tiềm năng tăng giá bền vững khi nút giao An Phú và đường Liên Phường thông xe toàn bộ vào cuối năm 2026.
Tầm nhìn Panorama độc bản hướng Kênh đào nhạc nước

Không giống như các dự án thông thường, dự án Lumière Midtown được quy hoạch để “độc chiếm tầng không” với tầm nhìn vĩnh viễn. Các căn hộ hướng Bắc có thể trực diện thưởng ngoạn màn trình diễn ánh sáng tại Kênh đào nhạc nước lớn nhất Đông Nam Á, trong khi hướng Nam mở ra view nội khu resort sang trọng và skyline thành phố. Đây chính là yếu tố tạo nên sự khan hiếm cho giá bán Lumière Midtown trên thị trường chuyển nhượng sau này.
Hệ sinh thái tiện ích “một bước chân” chuẩn quốc tế



Sống tại chung cư Lumière Midtown, cư dân được thừa hưởng trọn vẹn đặc quyền của “The New Downtown”. Chỉ trong bán kính 500m, mọi nhu cầu từ học tập tại trường quốc tế, chăm sóc sức khỏe tại bệnh viện chuẩn JCI đến vui chơi tại City Park đều được đáp ứng. Sự đồng bộ này giúp Lumière Midtown The Global City trở thành lựa chọn số 1 cho cộng đồng chuyên gia và giới tri thức thành đạt.
Hotline Mua Bán + Cho Thuê + Ký Gửi Lumière Midtown Quận 2: 0937.098.890
Hệ Thống Tiện Ích Lumière Midtown – Đặc Quyền Sống Chuẩn Quốc Tế
Tại Lumière Midtown The Global City, cư dân không chỉ sở hữu một căn hộ mà là sở hữu cả một hệ sinh thái sống thượng lưu. Sự kết hợp hoàn hảo giữa tiện ích nội khu biệt lập và tiện ích ngoại khu đẳng cấp từ đại đô thị The Global City tạo nên một giá trị sống khác biệt, nơi mọi nhu cầu từ nghỉ dưỡng, giải trí đến làm việc đều được đáp ứng trong vài bước chân.
Tiện ích nội khu Lumière Midtown: Riêng tư và đẳng cấp
Phân khu Lumière Midtown được thiết kế như một ốc đảo xanh giữa lòng thành phố với các tiện ích đặc quyền dành riêng cho cư dân:
- Hồ bơi tràn bờ Panorama: Thiết kế theo phong cách resort, nơi bạn có thể thư giãn và ngắm nhìn toàn cảnh trung tâm mới.

- Vườn xanh trên không (Sky Garden): Không gian thư giãn lý tưởng với mật độ cây xanh bao phủ, mang lại không khí trong lành.

- Phòng Gym & Yoga hiện đại: Trang bị thiết bị cao cấp nhất, giúp cư dân duy trì lối sống lành mạnh.

- Sảnh đón (Lobby) 6 sao: Không gian đón khách lộng lẫy, khẳng định vị thế của gia chủ ngay từ bước chân đầu tiên.


- Shophouse khối đế thương mại

- Khu vực giải trí và thư giãn cho cả gia đình





Đây chính là tiêu chuẩn sống mà Masterise Homes luôn tâm huyết kiến tạo tại dự án The Global City.
Tiện ích ngoại khu: Downtown mới sầm uất nhất Sài Gòn
Bên cạnh những đặc quyền nội khu, cư dân chung cư Lumière Midtown còn thừa hưởng toàn bộ hạ tầng “khủng” của The Global City


- Kênh đào Nhạc nước lớn nhất Đông Nam Á: Điểm đến check-in và giải trí hàng đầu khu vực, chỉ cách vài phút đi bộ.
- Shopping Mall 123.000m2: Trung tâm thương mại quy mô lớn nhất miền Nam, quy tụ hàng loạt thương hiệu xa xỉ thế giới.
- Khu đô thị SOHO sầm uất: Phân khu Shophouse SOHO The Global City mang đến chuỗi nhà hàng, cafe và dịch vụ giải trí đa dạng.
- Hệ thống trường học & Bệnh viện quốc tế: Đảm bảo môi trường giáo dục và chăm sóc sức khỏe chất lượng cao cho cả gia đình.
Vị trí kết nối ngàn tiện ích



Nhờ tọa lạc tại tâm điểm hạ tầng, cư dân Lumière Midtown dễ dàng tiếp cận các tiện ích ngoại khu lân cận như: Nút giao An Phú, Thủ Thiêm, Thảo Điền và các sân Golf danh tiếng. Mọi thứ bạn cần cho một cuộc sống thịnh vượng đều hội tụ tại Lumière Midtown The Global City.
Hotline Mua Bán + Cho Thuê + Ký Gửi Lumière Midtown Quận 2: 0937.098.890
Mặt Bằng Chi Tiết Chung Cư Lumière Midtown Quận 2
Quy hoạch 2 tòa tháp Tower A & Tower B
Mặt bằng tầng điển hình tòa tháp A Lumière Midtown The Global City
Mặt bằng chung cư Lumière Midtown được thiết kế theo hình khối hiện đại, tối ưu hóa các góc đón gió và ánh sáng tự nhiên. Với mật độ căn hộ thấp và hệ thống thang máy tốc độ cao, sự riêng tư và an toàn của cư dân luôn được đặt lên hàng đầu. Sàn Lộc Phát Hưng hiện đang nắm giữ danh sách các căn tầng cao đẹp nhất tại cả tòa A và tòa B, hỗ trợ khách hàng tham quan thực tế công trường hàng tuần.



Mặt bằng tầng điển hình tòa tháp B Lumière Midtown The Global City
Mặt bằng tầng điển hình của tòa tháp B tại phân khu LUMIÈRE Midtown (thuộc đại đô thị The Global City) được thiết kế theo phong cách hiện đại với sự tối ưu về tầm nhìn và công năng sử dụng.


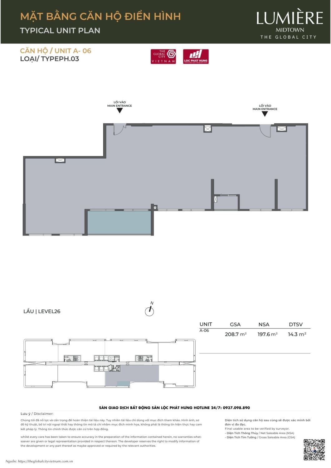
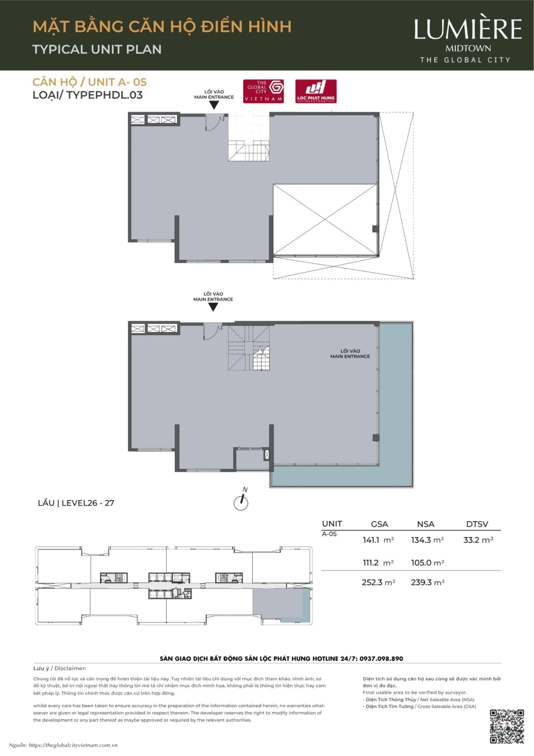
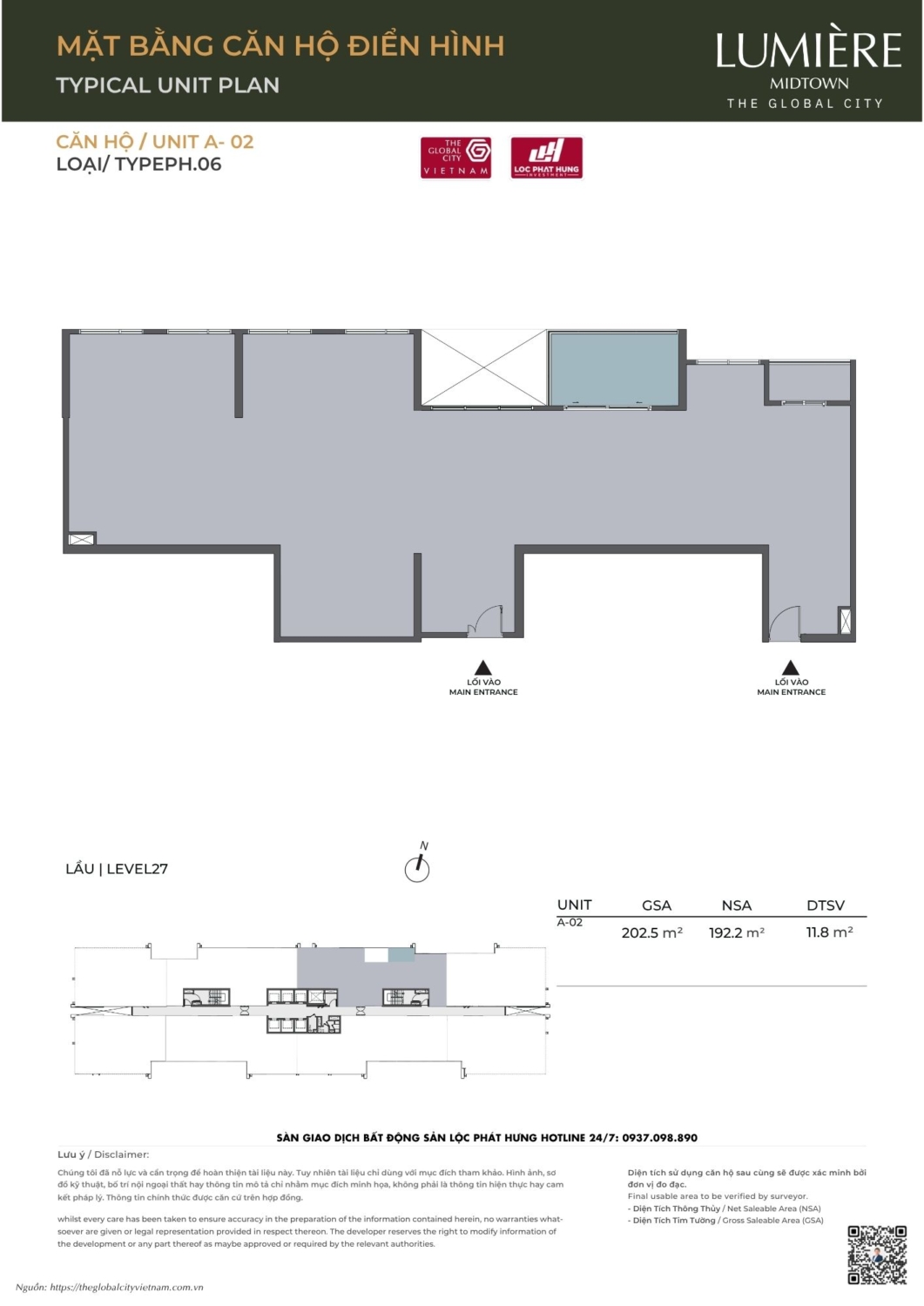
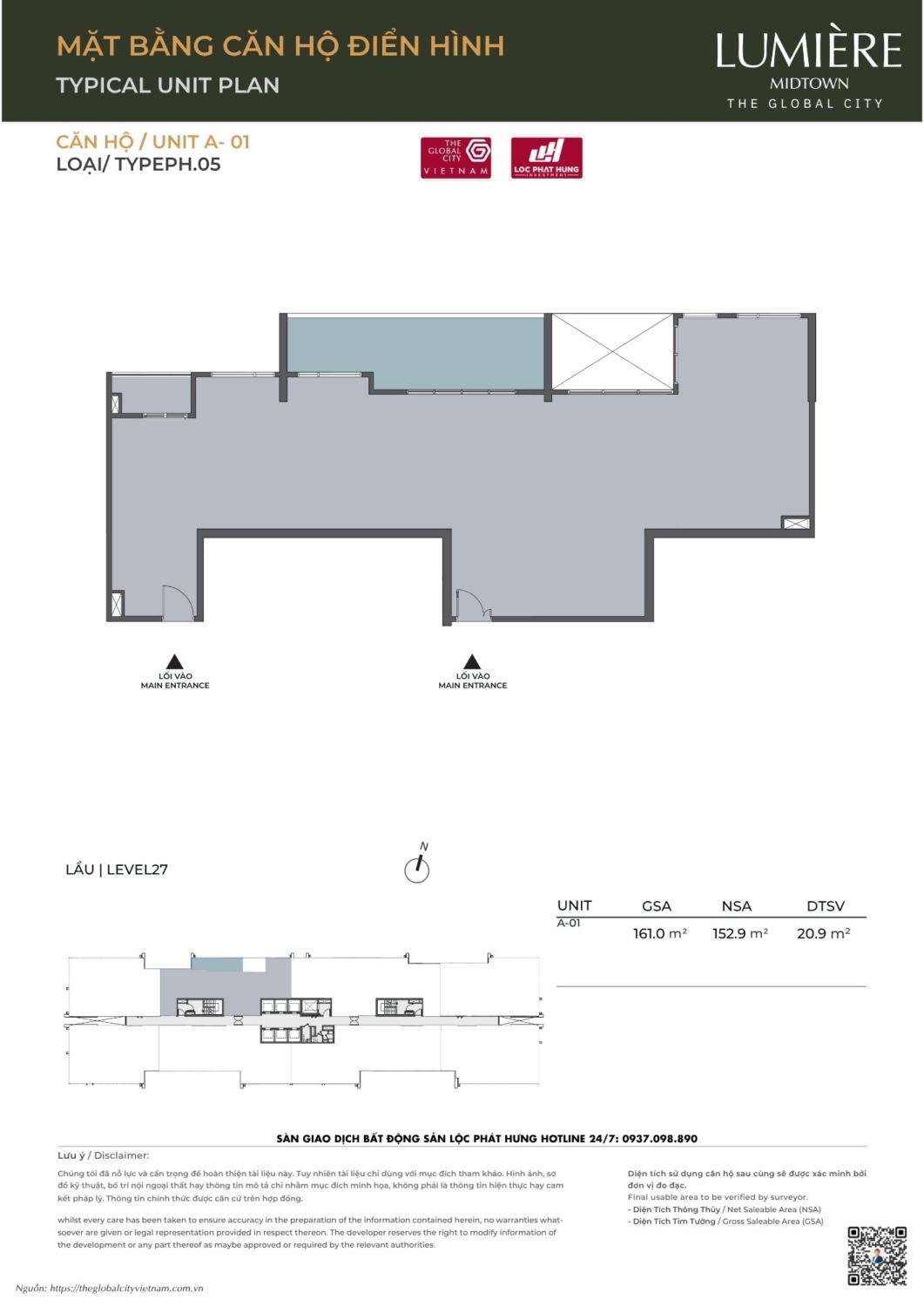
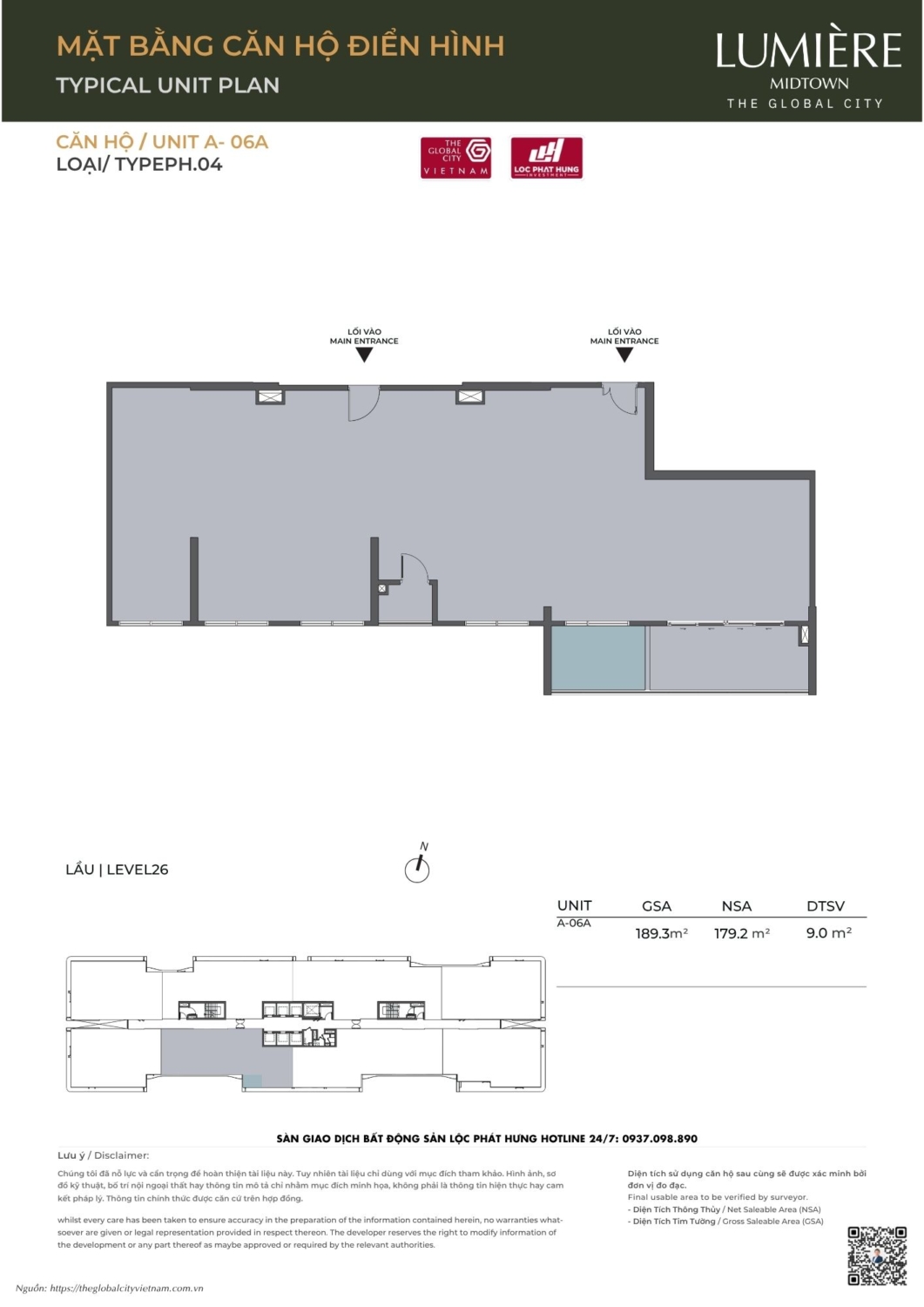
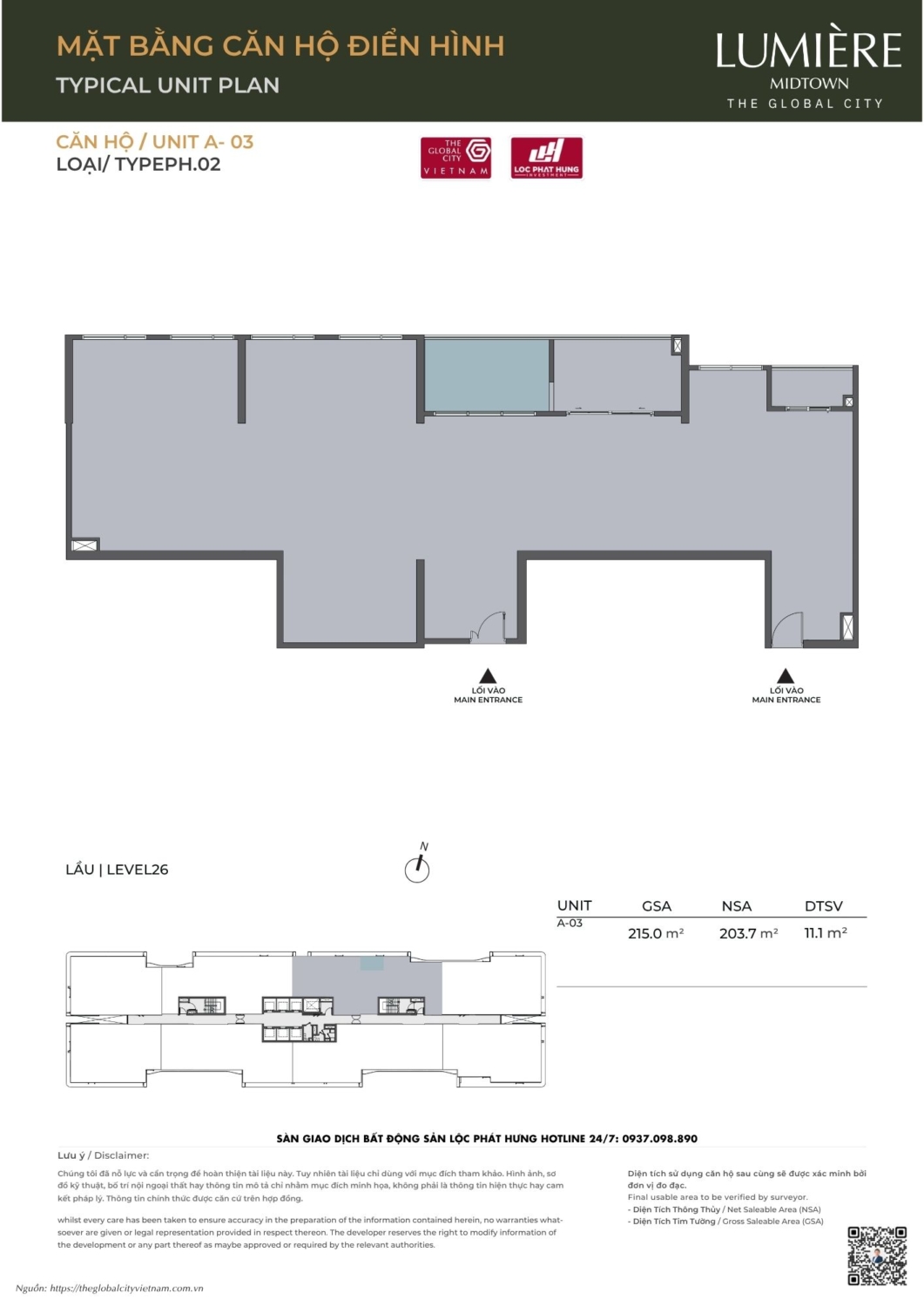
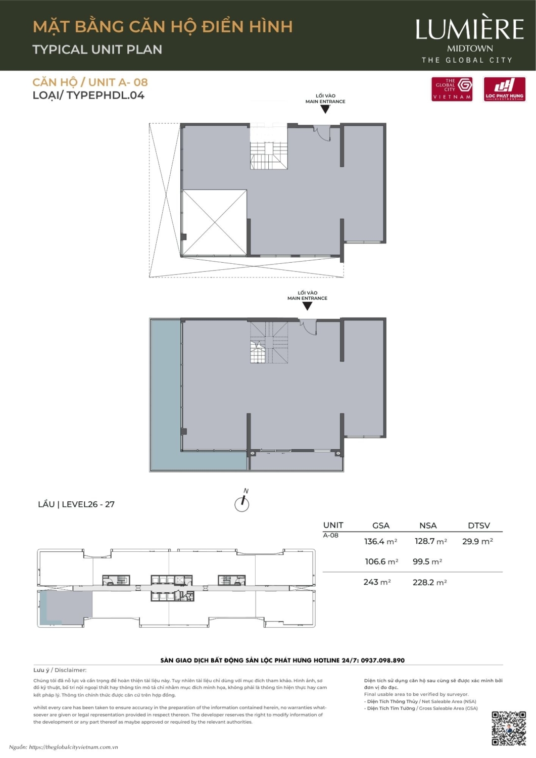
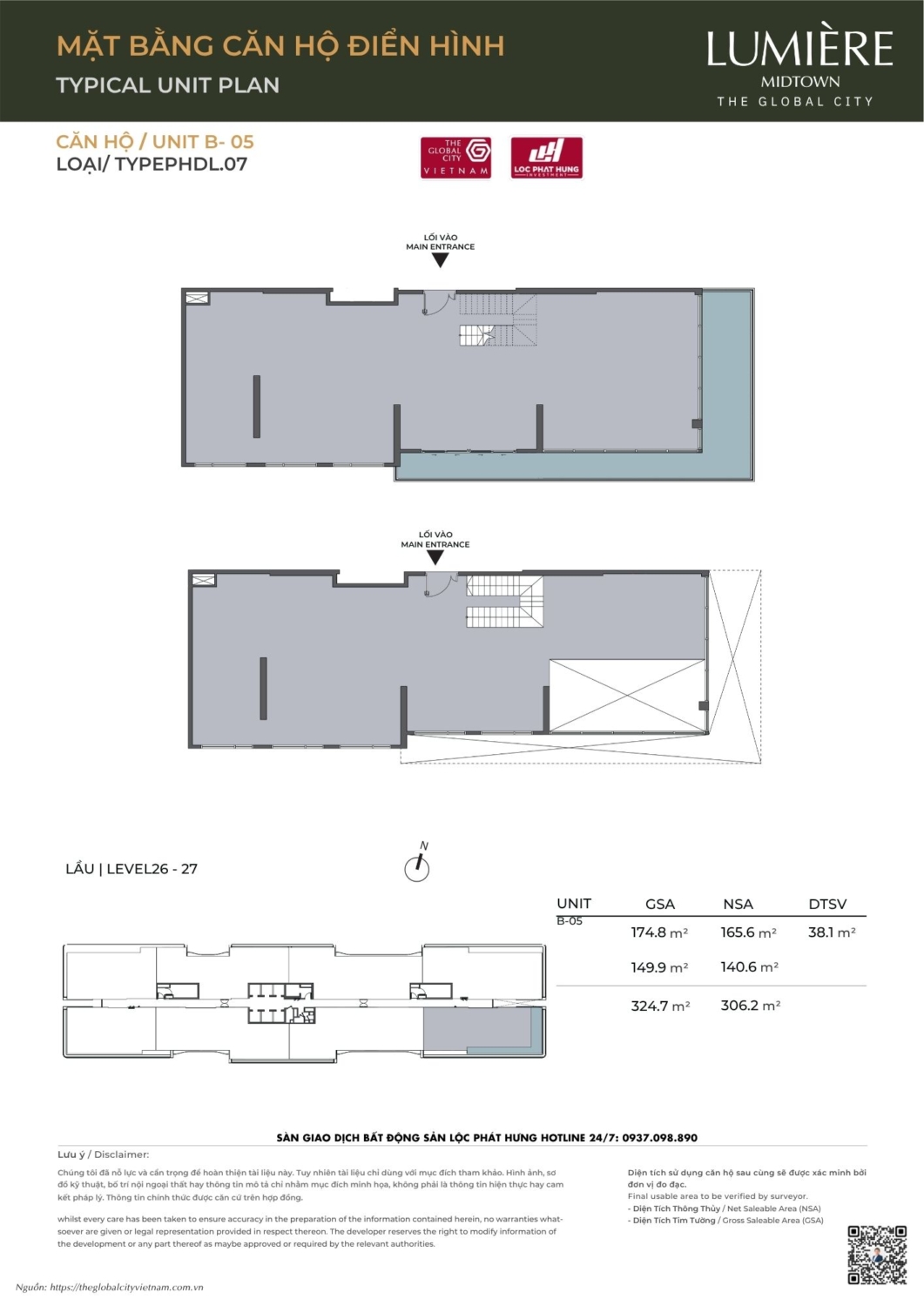
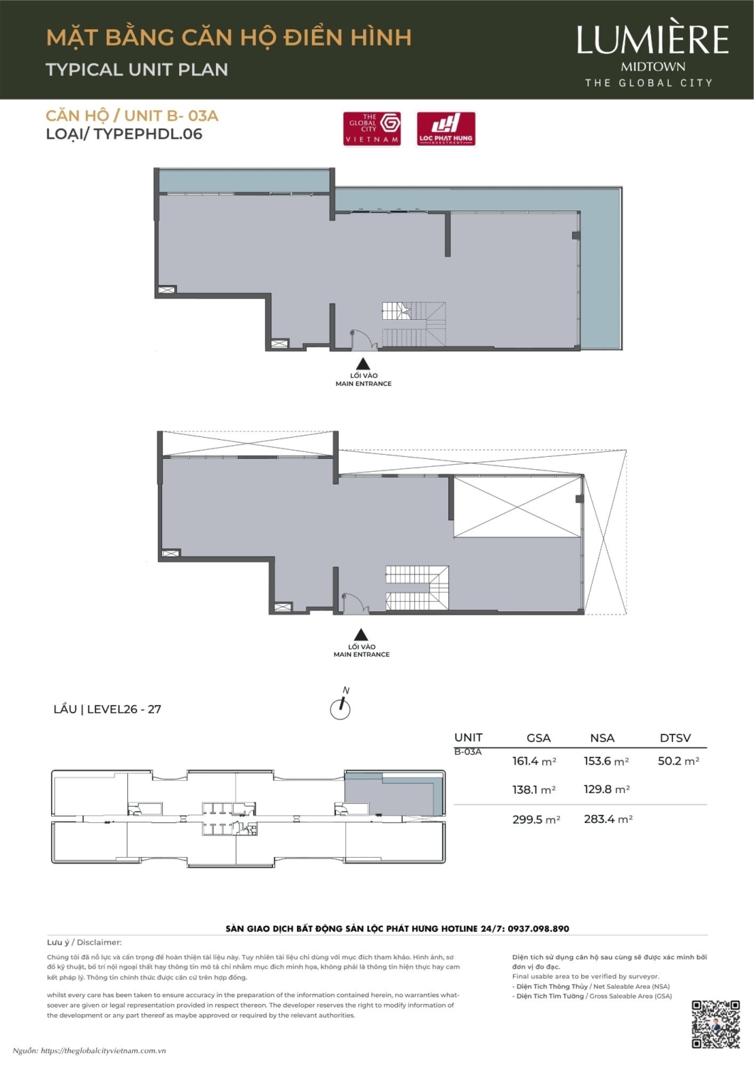
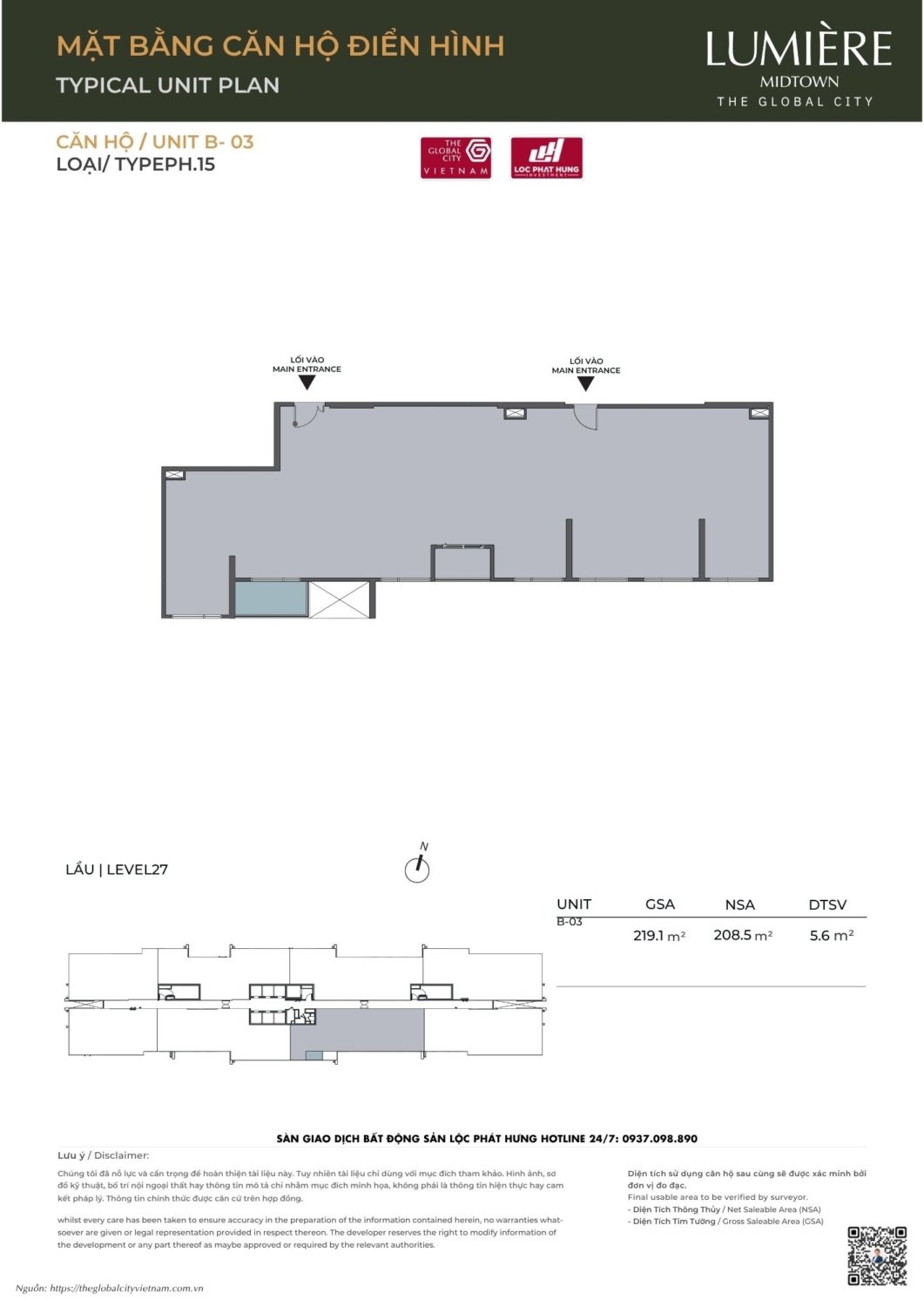
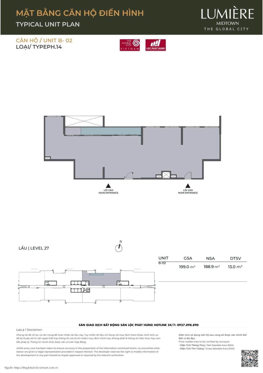
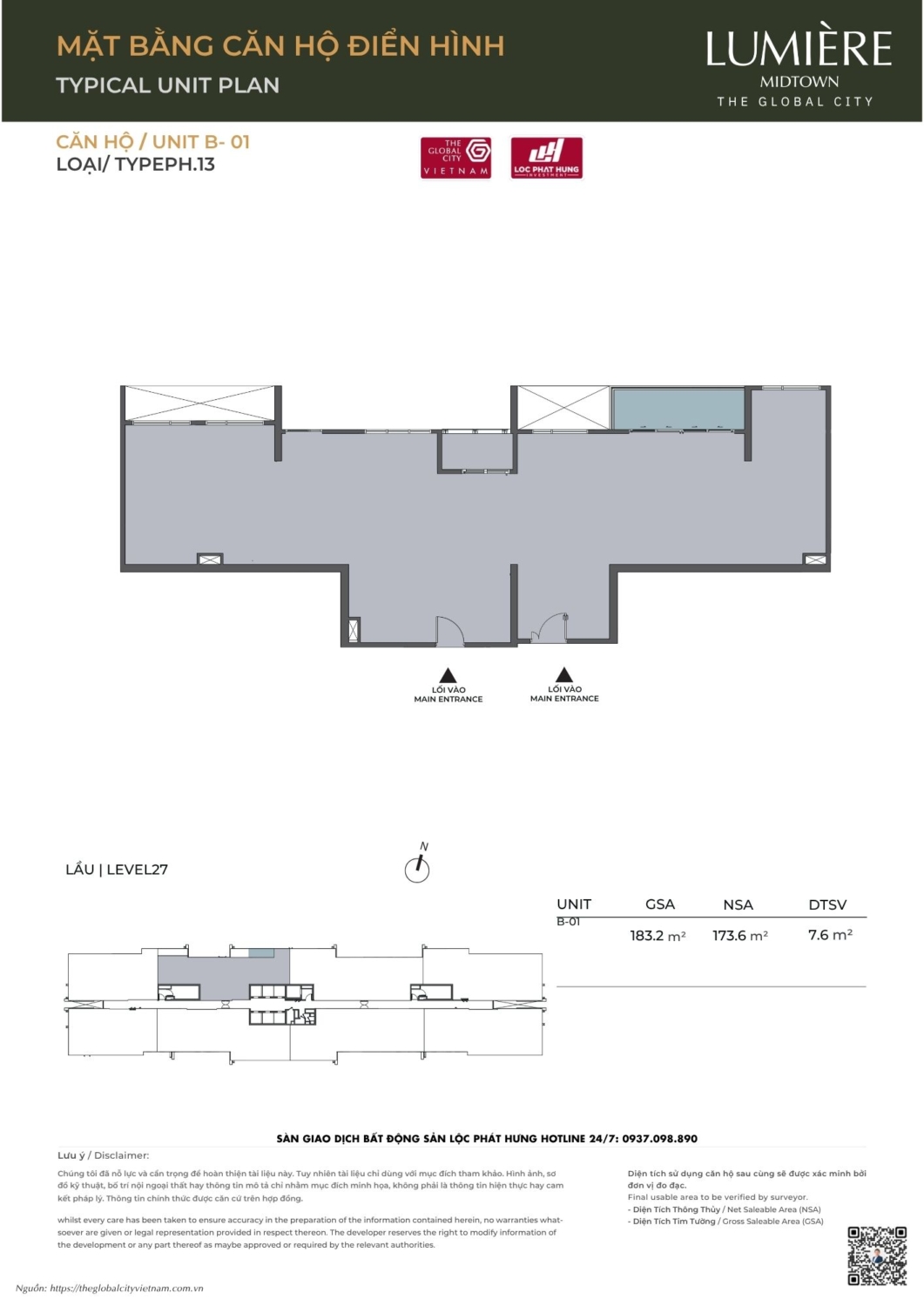
Layout căn hộ điển hình 1PN – 4PN, Penthouse, Penthouse Duplex
Từng layout căn hộ tại Lumière Midtown The Global City đều được Foster + Partners chăm chút tỉ mỉ
Mặt bằng căn hộ điển hình tòa tháp A Lumière Midtown The Global City
Mặt bằng căn hộ điển hình tại Tòa tháp A của phân khu LUMIÈRE Midtown (thuộc dự án The Global City) được thiết kế tinh tế với mật độ xây dựng thấp, tập trung vào không gian mở và tầm nhìn đắt giá.












Mặt bằng căn hộ điển hình tòa tháp B Lumière Midtown The Global City












Hotline Mua Bán + Cho Thuê + Ký Gửi Lumière Midtown Quận 2: 0937.098.890
Nhà Mẫu Lumière Midtown – Trải Nghiệm Không Gian Sống “Bespoke” Thượng Lưu
Nhà mẫu Lumière Midtown không chỉ là nơi tham quan, mà là một “tác phẩm nghệ thuật” sống động, giúp khách hàng chạm tay vào chuẩn sống quốc tế ngay tại trung tâm The Global City. Với phong cách thiết kế đương đại, đề cao sự tinh tế trong từng chi tiết, mỗi căn hộ mẫu là một minh chứng cho sự chỉn chu của nhà phát triển Masterise Homes.
Thiết kế nội thất mang phong cách đương đại tinh tế

Bước vào căn hộ mẫu Lumière Midtown, khách hàng sẽ bị choáng ngợp bởi không gian mở sang trọng. Sự kết hợp giữa các tông màu trung tính sang trọng như beige, xám ghi và nâu gỗ tạo nên cảm giác ấm cúng nhưng không kém phần đẳng cấp. Hệ cửa kính Panorama từ trần đến sàn giúp tối ưu ánh sáng tự nhiên, mang lại tầm view khoáng đạt ôm trọn hệ thống Nhạc nước lớn nhất Đông Nam Á.
Không gian sống thông minh “Smart Living”


Nhà mẫu còn tích hợp các giải pháp công nghệ hiện đại, cho phép cư dân tương lai điều khiển hệ thống chiếu sáng, rèm cửa và an ninh chỉ bằng một nút chạm. Đây chính là chuẩn mực sống mới mà cư dân phân khu Shophouse SOHO The Global City và Lumière Midtown luôn hướng tới.
Hotline Mua Bán + Cho Thuê + Ký Gửi Lumière Midtown Quận 2: 0937.098.890
Bảng Giá Bán Căn Hộ Lumière Midtown 04/2026 & Chính Sách Thanh Toán
Bảng Giá Bán Căn Hộ Lumière Midtown 04/2026
Giá bán Lumière Midtown được đánh giá là cực kỳ cạnh tranh so với phân khúc hạng sang tại trung tâm mới Quận 2. Tùy vào vị trí tầng, hướng view (view nội khu hay view nhạc nước) mà mức giá sẽ có sự chênh lệch nhẹ.
| Loại Căn Hộ | Diện Tích (Tim tường) | Giá Bán Dự Kiến (VND) |
|---|---|---|
| Căn hộ 1 Phòng Ngủ | 45m² – 55m² | Từ 7.5 Tỷ |
| Căn hộ 2 Phòng Ngủ | 70m² – 85m² | Từ 12 Tỷ |
| Căn hộ 3 Phòng Ngủ | 100m² – 120m² | Từ 18 Tỷ |
| Căn hộ 4 Phòng Ngủ | 140m² – 170m² | Liên hệ trực tiếp |
| Penthouse | Trên 250m² | Hàng giới hạn |
* Lưu ý: Giá bán trên mang tính chất tham khảo tại thời điểm hiện tại. Vui lòng liên hệ theglobalcityvietnam.com.vn để nhận bảng giá chi tiết căn góc.
Chính Sách Thanh Toán & Ưu Đãi Lumière Midtown
Masterise Homes luôn mang đến những giải pháp tài chính linh hoạt nhất cho khách hàng sở hữu Lumière Midtown The Global City. Hiện tại có 3 phương thức thanh toán chính để quý khách lựa chọn:
1. Thanh toán theo tiến độ chuẩn (Bằng vốn tự có)
| Đợt Thanh Toán | Tỷ Lệ (%) | Ghi Chú |
|---|---|---|
| Đặt cọc | 200 – 500 Triệu | Ký phiếu đặt cọc |
| Đợt 1 (Ký HĐMB) | 10% – 20% | Trong vòng 7-15 ngày |
| Các đợt tiếp theo | 5% – 10% | Cách nhau 2-3 tháng/đợt |
| Thông báo bàn giao | 25% | Dự kiến năm 2027-2028 |
| Nhận sổ hồng | 5% | Theo quy định pháp luật |
2. Chính sách hỗ trợ vay ngân hàng (Ân hạn gốc lãi)
- Mức vay tối đa: Lên đến 70% – 80% giá trị căn hộ.
- Hỗ trợ lãi suất 0%: Áp dụng trong vòng 18 – 24 tháng (hoặc đến khi nhận nhà).
- Ân hạn nợ gốc: Khách hàng không cần trả gốc trong thời gian hỗ trợ lãi suất.
- Phí trả nợ trước hạn: Miễn phí hoàn toàn trong thời gian hỗ trợ.
3. Chính sách thanh toán nhanh (Chiết khấu cao)
Dành cho khách hàng có nguồn vốn dồi dào, khi thanh toán sớm từ 70% – 95% giá trị căn hộ Lumière Midtown, quý khách sẽ nhận được mức chiết khấu từ 7% – 12% trực tiếp vào giá bán hợp đồng.
🚀 ƯU ĐÃI ĐẶC BIỆT THÁNG 04/2026 : Tặng Voucher nội thất trị giá lên đến 200 Triệu + Miễn phí quản lý 3 năm.
📞 Liên hệ ngay: 0933.098.890 (Nguyễn Lộc Nghĩa)
Hotline Mua Bán + Cho Thuê + Ký Gửi Lumière Midtown Quận 2: 0937.098.890
Tiêu Chuẩn Nội Thất Bàn Giao Lumière Midtown – Đẳng Cấp Xa Xỉ Từ Các Thương Hiệu Quốc Tế
Tại Lumière Midtown The Global City, mỗi căn hộ không chỉ là nơi để ở mà còn là biểu tượng của sự sang trọng. Masterise Homes đã hợp tác cùng các đối tác thiết kế hàng đầu thế giới để mang đến một không gian sống hoàn mỹ, nơi những giá trị thẩm mỹ và công năng được hòa quyện tinh tế.
Danh mục vật liệu “Full Branded” cao cấp
Điểm làm nên sự khác biệt của chung cư Lumière Midtown chính là tiêu chuẩn bàn giao vượt trội. Từ sàn gỗ công nghiệp nhập khẩu bền bỉ, hệ cửa kính Low-E 3 lớp cách âm, cách nhiệt đến hệ thống khóa cửa thông minh tích hợp nhiều lớp an ninh. Tất cả tạo nên một tổ ấm an toàn và đẳng cấp.
Không gian bếp và thiết bị vệ sinh chuẩn 5 sao
Khu vực bếp được trang bị đầy đủ hệ tủ bếp trên và dưới với mặt đá cao cấp, thiết kế tối ưu cho người sử dụng. Đặc biệt, các thiết bị vệ sinh từ thương hiệu Kohler hoặc Duravit mang lại cảm giác thư giãn như tại các resort hạng sang. Đừng quên khám phá thêm phong cách sống tại phân khu SOHO The Global City để thấy sự đồng bộ trong thiết kế của toàn đại đô thị.
Hệ thống điều hòa và giải pháp chiếu sáng hiện đại
Để đảm bảo sức khỏe và sự thoải mái cho cư dân, Lumière Midtown bàn giao hệ thống điều hòa âm trần Daikin hiện đại, giúp tiết kiệm điện năng và tối ưu diện tích. Kết hợp với giải pháp chiếu sáng thông minh, căn hộ của bạn sẽ luôn tràn đầy năng lượng và ấm cúng vào mỗi buổi tối.
Pháp Lý Lumière Midtown The Global City – Bảo Chứng Niềm Tin Cho Nhà Đầu Tư
Khi đầu tư vào bất động sản cao cấp, pháp lý Lumière Midtown luôn là yếu tố được khách hàng quan tâm hàng đầu. Dự án tự hào sở hữu bộ hồ sơ pháp lý minh bạch, rõ ràng, giúp cư dân hoàn toàn yên tâm khi chọn đây là nơi an cư lạc nghiệp hoặc đầu tư sinh lời bền vững.
Sở hữu lâu dài và quyền lợi cư dân
Dự án có hình thức sở hữu sổ hồng lâu dài đối với người Việt Nam, đảm bảo giá trị tài sản gia tăng theo thời gian. Với uy tín từ chủ đầu tư Masterise Homes, mọi quy trình từ ký kết hợp đồng đến bàn giao sổ đều được thực hiện chuyên nghiệp và đúng tiến độ cam kết.
Quy hoạch chi tiết 1/500 và giấy phép xây dựng
Lumière Midtown The Global City đã hoàn tất phê duyệt quy hoạch chi tiết 1/500 và có đầy đủ giấy phép xây dựng từ cơ quan chức năng. Điều này khẳng định dự án tuân thủ nghiêm ngặt các quy định về kiến trúc và hạ tầng đô thị. Bạn có thể xem thêm tổng quan The Global City để hiểu rõ hơn về quy hoạch tổng thể của đại dự án này.
Sự bảo lãnh từ các ngân hàng uy tín
Bên cạnh hồ sơ pháp lý vững chắc, Lumière Midtown còn nhận được sự hỗ trợ và bảo lãnh từ các ngân hàng lớn. Điều này không chỉ bảo đảm dòng vốn cho dự án mà còn cung cấp các gói vay ưu đãi, giúp khách hàng dễ dàng sở hữu căn hộ mơ ước tại trung tâm mới của Sài Gòn.
Hotline Mua Bán + Cho Thuê + Ký Gửi Lumière Midtown Quận 2: 0937.098.890
Tiến Độ Thi Công Thực Tế Lumière Midtown Cập Nhật Mới Nhất 2026
Tiến độ thi công tại công trường LUMIÈRE Midtown 04.2026


Hình ảnh thi công tại công trường LUMIÈRE Midtown 02.2026



Tại công trường phân khu CT7, tiến độ Lumiere Midtown đang bám rất sát lộ trình đã đề ra. Hệ thống máy móc và nhân lực được huy động tối đa để hoàn thiện các hạng mục cuối cùng của phần móng hầm. Lộc Phát Hưng nhận thấy sự khác biệt rõ rệt trong cách triển khai của Masterise Homes so với các dự án lân cận như Masteri Cosmo Central hay Masteri Grand View. Sự tỉ mỉ trong từng khâu kỹ thuật giúp dự án duy trì được vẻ chỉn chu ngay cả khi đang trong quá trình xây dựng thô.
Hotline Mua Bán + Cho Thuê + Ký Gửi Lumière Midtown Quận 2: 0937.098.890
Đánh Giá Từ Lộc Phát Hưng: Có Nên Mua Lumière Midtown?
10 lý do lựa chọn Lumière Midtown The Global City
Dưới đây là các luận điểm “vàng” mà đội ngũ chuyên gia của Lộc Phát Hưng tổng hợp dành cho quý nhà đầu tư:
- Chủ đầu tư uy tín: Masterise Homes bảo chứng cho chất lượng và pháp lý.
- Vị trí “Diamond Heart”: Mặt tiền Liên Phường, sát cạnh TTTM.
- Số lượng hữu hạn: Chỉ 808 căn, tính thanh khoản cực cao.
- Thiết kế biểu tượng: Kiến trúc New York hiện đại bởi Foster + Partners.
- Tầm view vĩnh viễn: Trực diện kênh đào nhạc nước và trung tâm thành phố.
- Tiện ích Wellness: Hồ bơi vô cực, vườn thiền, Sky Garden đạt chuẩn 5 sao.
- Nội thất hàng hiệu: Bàn giao thiết bị từ các thương hiệu hàng đầu thế giới.
- Pháp lý hoàn chỉnh: Đã đủ điều kiện ký hợp đồng mua bán.
- Đòn bẩy tài chính: Vay 80%, miễn lãi suất đến năm 2028.
- Tiềm năng cho thuê: Hướng đến đối tượng chuyên gia làm việc tại High-tech Park.
Liên hệ tư vấn và đăng ký tham quan nhà mẫu
Với giỏ hàng độc quyền nhiều căn suất nội bộ giá tốt, Lộc Phát Hưng cam kết mang lại giải pháp đầu tư hiệu quả nhất tại Lumière Midtown The Global City. Quý khách hàng vui lòng liên hệ hotline bên dưới để nhận trọn bộ tài liệu Siteplan và file tính dòng tiền chi tiết.
Hotline Mua Bán + Cho Thuê + Ký Gửi Lumière Midtown Quận 2: 0937.098.890

